コインパーキングのことなら株式会社スペースプラン
駐車場機器のトータルプロデュースをいたします。
TEL:
082-541-0018
までお気軽にお問い合わせください。
お問い合わせ
HOME
土地活用のご提案
導入事例
導入までの流れ
商品カタログ
看板フレーム埋め込み式
バリカー・エンドフレーム
車止め
ポール
テントフレーム埋め込み式
メンテナンス
Q & A
About us
スタッフBLOG
会社概要
商品カタログ/テントフレーム
ウイングテントフレーム埋め込み式
600×1000
仕 様
支 柱
50×50×2.3t
塗 装
ラッカー塗装
(シルバー)
2440×1220
仕 様
支 柱
75×75×2.3t
梁
75×75×2.3t
塗 装
ラッカー塗装
(シルバー)
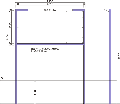
2000×1000
仕 様
支 柱
60×60×2.3t
梁
60×60×2.3t
塗 装
ラッカー塗装
(シルバー)
1820×910
仕 様
支 柱
60×60×2.3t
梁
60×60×2.3t
塗 装
ラッカー塗装
(シルバー)
CONTENTS
コインパーキング関連商品
看板フレーム埋め込み式
バリカー・エンドフレーム
車止め
ポール
テントフレーム埋め込み式
駐車場所在地リスト
広島県広島市中区
広島県広島市南区
広島県広島市東区
広島県広島市西区
広島県広島市佐伯区
広島県呉市
広島県東広島市
広島県安芸郡府中町
広島県広島市安佐南区
広島県廿日市市
山口県
コインパーキングに関する
お問い合わは
TEL:082-541-0018
(株)スペースプラン
に、
お気軽にお問い合わせ
ください。
検索 powered by Google
|
HOME
|
お問い合わせ
|
■本 社
■東京営業所
■大阪営業所
〒730-0022/広島市中区銀山町9-20
〒124-0014/東京都葛飾区東四つ木1-9-2
〒530-0033/大阪市北区池田町1-55-301
TEL:082-541-0018/FAX:082-541-0019
TEL:03-5670-5557/FAX:03-5670-5564
TEL:06-6242-3001/FAX:06-6242-3002
Copyright(c) 2008 SPACE PLAN Co.,Ltd. All rights reserved.